Madridplantsoen 105
2034 VR HAARLEM

€ 335.000,- k.k.

Modern en licht 3 kamer hoek-appartement gelegen op de 3e en tevens bovenste verdieping van een goed onderhouden appartementencomplex gebouwd in 1980! Locatie: Schalkwijk ondergaat momenteel een complete gedaanteverwisseling! Door de vele moderne nieuwbouwprojecten waarbij o.a. voormalige kantoorgebouwen worden omgebouwd tot... Lees meer

Kenmerken

Verkocht

Omschrijving
Modern en licht 3 kamer hoek-appartement gelegen op de 3e en tevens bovenste verdieping van een goed onderhouden appartementencomplex gebouwd in 1980!

Locatie:
Schalkwijk ondergaat momenteel een complete gedaanteverwisseling! Door de vele moderne nieuwbouwprojecten waarbij o.a. voormalige kantoorgebouwen worden omgebouwd tot moderne wooncomplexen is de sfeer totaal veranderd; van een gedateerde en ouderwetse uitstraling naar een frisse moderne woonplek op fietsafstand van de binnenstad van Haarlem en met uitstekende verbindingen met openbaar vervoer naar Amsterdam. Het nabij gelegen winkelcentrum wordt geheel vernieuwd en biedt een diversiteit aan supermarkten en winkels, horeca en restaurants, er komt een nieuwe markt/food hal als middelpunt en recent is er een bioscopencomplex geopend.

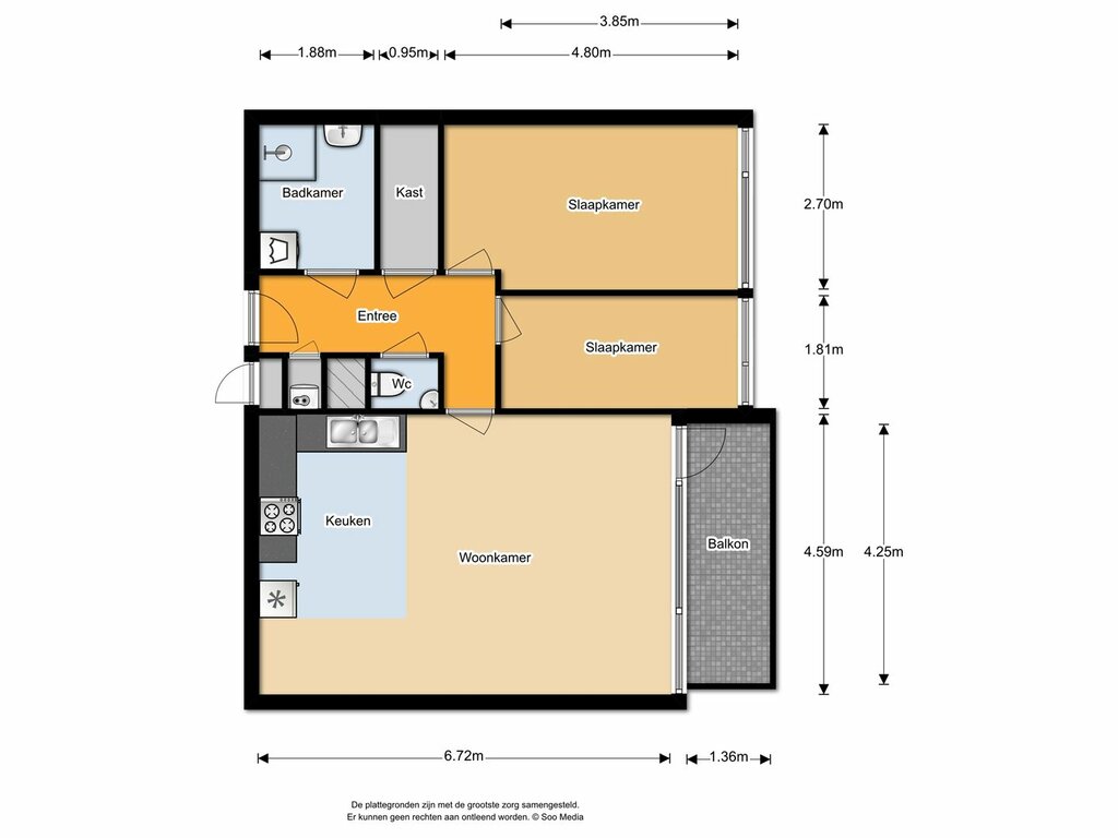
Indeling
Begane grond:
Entree/hal, brievenbus, bellentableau, trappenhuis, liften en eigen berging.

3e Verdieping:
Entree/hal, ruime lichte woonkamer voorzien van laminaatvloer. Vanuit de woonkamer heeft u toegang tot het ruime balkon. De moderne open keuken is voorzien van diverse inbouwapparatuur, te weten: vaatwasser, combi oven-magnetron, inductiekookplaat en afzuigkap. Ruime

hoofdslaapkamer, tweede slaapkamer, ook de badkamer is recent smaakvol en luxe verbouwd met inloopdouche en wastafelmeubel. Hier bevindt zich ook de wasmachine en droger aansluiting. Separaat modern toilet met fonteintje.

Het goed onderhouden complex uit 1980, is zeer centraal gelegen t.o.v. uitvalswegen, openbaar vervoer, winkels, scholen en sportverenigingen. Het gezellige centrum van Haarlem is op 10 minuten fietsafstand gelegen. De stranden van Zandvoort en Bloemendaal zijn eveneens op fietsafstand gelegen. Voor het complex is een ruime parkeerplaats met voldoende parkeergelegenheid.

Bijzonderheden:
- Moderne keuken en recent vernieuwde badkamer en toilet
- 2 ruime slaapkamers en inpandige berging.
- Ruim balkon.
- Gratis parkeren
- Servicekosten zijn € 227,66 per maand, inclusief verzekeringen, water, schoonmaken en elektriciteit algemene ruimtes, dagelijks onderhoud en reservering toekomstig onderhoud
- Zeer centraal gelegen t.o.v. uitvalswegen, openbaar vervoer (bus N300 op loop afstand), winkels, sportverenigingen en scholen.
- Winkelcentrum Schalkwijk is op loopafstand evenals het gezellige winkelstraatje op de Italielaan.
- Aanvaarding in overleg

Waar kunnen we je mee helpen?

Bel mij terug

Terugbelverzoek

Sassenheim - Regio Bollenstreek-Zuid

Hillegom - Regio Bollenstreek-Noord ​

Nieuw-Vennep - Regio Haarlemmermeer​

Bennebroek - Regio Zuid-Kennemerland​